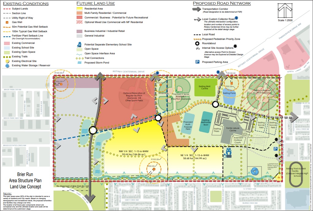
Brier Run neighbourhood plan earns first major approval
MEDICINE HAT, AB – It will still be years before shovels hit the ground in northeast Medicine Hat, but the concept of the Brier Run neighbourhood is already starting to take shape.
On Wednesday, the project took a big step forward earning unanimous approval at the City’s Municipal Planning Commission meeting.
Chair Brian Varga said there’s still a ways to go before the plans are realized, but is exited to see a neighbourhood proposal that features aspects of a strong community.


